Wohnen im Doppelpack: 2 Häuser – 1 Preis – viel Platz
99510 Apolda, Mehrfamilienhaus zum Kauf
Objektbeschreibung
Beschreibung
Zweiparteienhaus mit ausgebautem Neubau und moderner Ausstattung in zentraler Lage von Apolda:
Zum Verkauf steht ein besonderes Mehrfamilienhaus-Ensemble in ruhiger Lage von Apolda, bestehend aus zwei vollwertigen Wohneinheiten: einem modernisierten Reiheneckhaus mit ca. 108 m² Wohnfläche sowie einem angrenzenden, neu errichteten und noch unbewohnten Wohnhaus mit ca. 75 m² Wohnfläche.
Die Einheiten sind durch die Überbauung der Garage des vorderen Hauses baulich miteinander verbunden und werden ausschließlich gemeinsam verkauft. Insgesamt bietet das Objekt ca. 183 m² Wohnfläche, verteilt auf acht Zimmer und vier Bäder, sowie eine Grundstücksfläche von ca. 207 m².
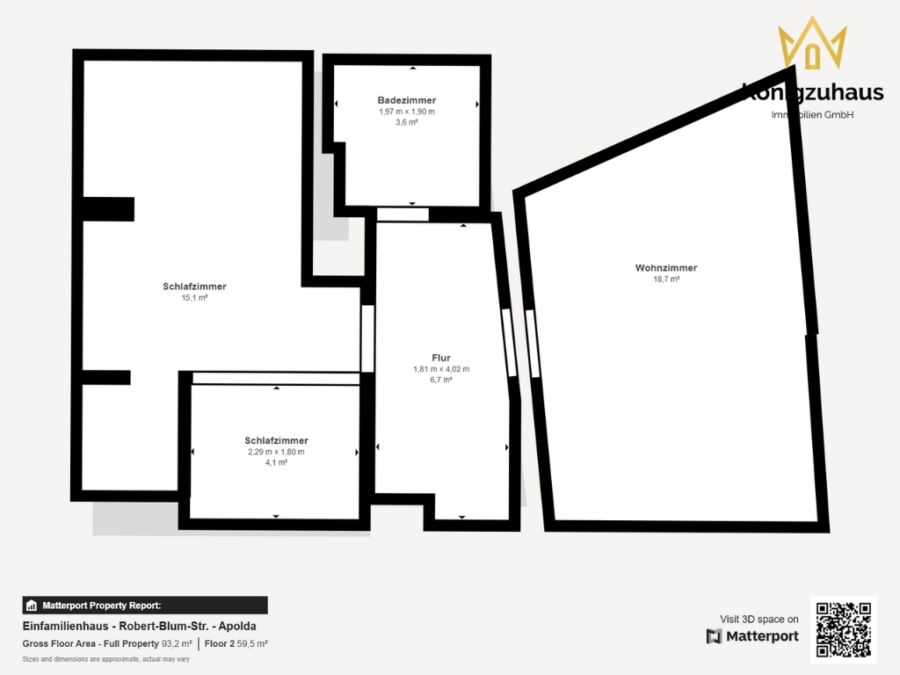
Wohneinheit 1 – Haus Nr. 2 (ca. 108 m² Wohnfläche):
Diese Wohneinheit präsentiert sich in einem sehr gepflegten, modernisierten Zustand und ist sofort bezugsfertig.
Ein neu gebauter, verglaster Eingangsbereich sorgt für viel Tageslicht und führt in das Erdgeschoss mit drei vielseitig nutzbaren Zimmern. Die großzügige Designerküche verbindet modernes Design mit Alltagstauglichkeit.
Ein modernes Duschbad mit geschickt integrierter Waschmaschine im Schrank ergänzt das Erdgeschoss.
Im Obergeschoss befinden sich drei weitere Zimmer, darunter ein besonders großer Raum mit ca. 19,6 m², separater Schlafecke, Zugang zum Dachboden und Potenzial für einen begehbaren Kleiderschrank. Der große Raum könnte bei Bedarf auch wieder getrennt werden (siehe Grundrisse).
Auch ein zweites Badezimmer mit Badewanne befindet sich auf dieser Ebene. Der begrünte, ruhige Innenhof bietet direkten Zugang zu einem Anbau, der aktuell als Werkstatt genutzt wird. Eine große, breite Garage gehört ebenfalls zur Einheit.
Wohneinheit 2 – Haus Nr. 4 (ca. 75 m² Wohnfläche):
Der angrenzende Neubau ist noch nicht fertiggestellt und bislang nicht bewohnt – er bietet vielfältige Gestaltungs- und Nutzungsmöglichkeiten, sei es zur Eigennutzung, Teilvermietung oder zur Unterbringung von Familienangehörigen.
Im Erdgeschoss befindet sich eine moderne Küche mit LED-Ambiente-Beleuchtung, ein großzügiges Duschbad mit Stauraumnischen sowie der Zugang zum Innenhof und zum zweiten Werkstattanbau.
Im Obergeschoss erstreckt sich ein lichtdurchflutetes Wohnzimmer über der Garage des Nachbarhauses, beheizt durch einen eigenen Heißluftofen.
Das angrenzende Schlafzimmer verfügt über eine separate Schlafnische, einen begehbaren Kleiderschrank und ein eigenes Badezimmer mit Badewanne.
Platzsparende Schiebetüren und durchdachte Stauraumlösungen bieten modernen Wohnkomfort auf allen Ebenen.
Optional kann die Fensterfront zum Innenhof zu einer Terrassentür umgebaut werden, sodass ein Balkon oder sogar eine Wohnraumerweiterung über dem Hofbereich entstehen kann.
Technik und Ausstattung:
Beide Einheiten werden separat über leistungsstarke Heißluftöfen beheizt.
Ein gültiger Energieausweis liegt vor und kann auf Anfrage eingesehen werden. Werkstattanbauten, Innenhöfe, moderne Bäder und Küchen, eine breite Garage sowie Ausbaupotenzial bieten zusätzlichen Mehrwert für Eigennutzer oder Kapitalanleger.
Highlights
- Zwei eigenständige Wohneinheiten mit zusammen ca. 183 m² Wohnfläche
- Neubau-Wohnung mit hochwertiger Ausstattung und Gestaltungsspielraum
- Designerküche, vier moderne Bäder, großzügige Zimmeraufteilung
- Innenhöfe, Werkstattanbauten und breite Garage
- Ruhige und zentrale Lage in Apolda mit guter Infrastruktur
Sonstiges
Alle voranstehend aufgeführten Angaben zum Objekt beruhen auf uns übermittelten Informationen vom Eigentümer (oder Dritten). Der Makler übernimmt für deren Richtigkeit keine Haftung, ein Irrtum ist vorbehalten.
Sie möchten Ihre Immobilie verkaufen oder kennen jemanden, der das tun möchte?
Wir begleiten sowohl Käufer als auch Verkäufer beim kompletten Verkaufsprozess der Immobilie! Mit digitalen und zeitgleich immer menschennahen und herzlichen Prozessen stehen wir an Ihrer Seite. Von der Marktpreisermittlung bis hin zu Notartermin und Objektübergabe begleiten wir Sie.
Tragen Sie sich gerne auf https://koenigzuhaus.de/immobilienbewertung/ ein oder rufen Sie uns einfach an. Als Tippgeber bekommen Sie gerne mehr Informationen unter https://koenigzuhaus.de/tippgeber/
Wir freuen uns Sie kennenzulernen. #beiunszuhaus
Lage
Die Immobilie liegt in einem ruhigen, gewachsenen Wohnviertel im Süden von Apolda, unweit des Stadtzentrums.
Einkaufsmöglichkeiten, Schulen, Kindergärten und Ärzte befinden sich in direkter Nähe. Der Bahnhof ist gut erreichbar und bietet ideale Anbindungen an Weimar, Jena und Erfurt.
Die Lage kombiniert entspannte Wohnatmosphäre mit guter Infrastruktur – perfekt für Familien, Berufspendler und alle, die zentrumsnah und ruhig wohnen möchten.
Sie sehen gerade einen Platzhalterinhalt von Google Maps - WP-ImmoMakler. Um auf den eigentlichen Inhalt zuzugreifen, klicken Sie auf die Schaltfläche unten. Bitte beachten Sie, dass dabei Daten an Drittanbieter weitergegeben werden.
Mehr Informationen99510 Apolda, Thüringen, Deutschland (auf Google Maps ansehen)
Energieausweis
-
EnergieausweistypBedarfsausweis
-
Ausstellungsdatum16.10.2023
-
Gültig bis21.05.2034
-
GebäudeartWohngebäude
-
Baujahr1915
-
PrimärenergieträgerKohle
-
EnergieeffizienzklasseE
Objektdaten
-
Objekt-ID1033
-
ObjekttypenHaus, Mehrfamilienhaus
-
Adresse99510 Apolda
Thüringen -
Etagen im Haus2
-
Wohnfläche ca.183 m²
-
Grundstück ca.207 m²
-
Zimmer8
-
Badezimmer4
-
Balkone1
-
HeizungsartOfenheizung
-
Wesentlicher EnergieträgerKohle
-
Baujahr1915
-
Zustandmodernisiert
-
AusstattungStandard
-
Stellplätze gesamt1
-
Garagenstellplatz1 Stellplatz
-
ProvisionspflichtigJa
-
Käuferprovision4,76 % inkl. MwSt.
verdient und fällig nach notariellem Kaufvertragsabschluss. -
Kaufpreis235.000 EUR
Ausstattung / Merkmale
- ✓ Badewanne
- ✓ Balkon
- ✓ Dusche
- ✓ Garage
- ✓ Gäste-WC
- ✓ Keller
- ✓ Tageslichtbad
Kontaktdaten
-
NameFrau Leonie Viebig
Vertrieb -
FirmaKönigzuhaus Immobilien GmbH
-
AdresseDornburger Str. 8
07743 Jena -
E-Mail Zentrale
-
Tel. Zentrale































